Eladó ikerház - Balatonkenese ingatlan ID: 163701983

 Megosztás  nyomtatás  Kedvencekhez
100 m2
alapterület
360 m2
telek
5
szoba
125 000 000 Ft


Ingatlan leírása

Eladó új építésű ikerházfél Balatonkenesén!

Eladó új építésű ikerházfél Balatonkenesén!


A CasaNetWork Balatonalmádi Ingatlaniroda eladásra kínálja a 1983-as számú, kivételes adottságokkal bíró lakóingatlanát Balatonkenesén! 

 A balatonkenesei új építésű ikerházfél jellemzői:

- lehetőség illetékmentes vásárlásra

- kiváló lokáció: hamisítatlan balatoni hangulat; csendes, nyugodt környezet

- a környék rendezett, a szomszédos telkek jó megjelenésű, karbantartott ingatlanokkal beépítettek 

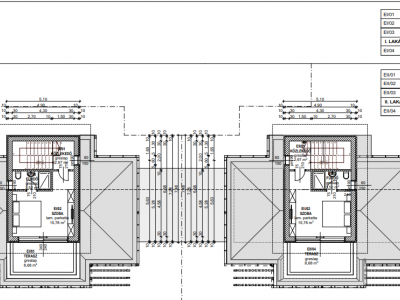
- a két ikerházfélnek nincs közös fala

- tégla falazat, grafitos szigetelés, hőtechnikailag közel 0 energiaigény

- kondenzációs gázkazán biztosítja a fűtést és a melegvíz-ellátást, valamint 1 db hűtő-fűtő klímaberendezés is az alapár része

- az igényes kivitelezés az ingatlan egészére jellemző; magas szintű épületminőség és felszereltség

- saját használatú kertrész és autóbeálló 

- kiváló lehetőség saját célra vagy befektetésnek



Amennyiben a 1979-es számú, a CasaNetWork Balatonalmádi Ingatlaniroda által hirdetett balatonkenesei ikerházfél, vagy bármely a kínálatunkban található ingatlan felkeltette érdeklődését, kérem hívjon a megadott telefonszámon!

Schultheisz Brigitta

vezető ingatlan-képviselő

+36 20 250 4403

 

Vásárolna, de nincs rá keret? Kollégám díjmentes, banksemleges hitelügyintézéssel áll rendelkezésére.

CasaNetWork -  A civilizált ingatlanértékesítés artériája! 


Bővebben...


Ingatlan jellemzők

Közművek

gázvezetékes gáz
villanybevezetve (230 Volt)
vízvan, saját vízórával
csatornacsatorna közműhálózatba bekötve

Felszereltség

komfortfokozatösszkomfort
akadálymentesítésakadálymentesített
klímasaját split klíma
fűtéskondenzációs kazán

Ingatlan tulajdonságai

építési módtégla
belső állapotúj építésű
külső állapothőszigetelt
kilátásudvari kilátás
parkolásparkolás beállón
energetikai tanúsítványAA+
tájolásdélnyugati tájolás

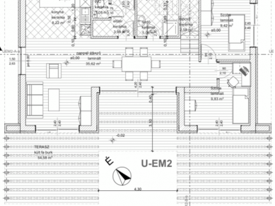
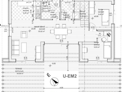
Helyiségek

Konyha
8.22 m2
WC
1.08 m2
Előszoba
3.99 m2
Fürdőszoba
5.06 m2
Szoba
9.42 m2
Nappali
35.62 m2
Szoba
9.83 m2
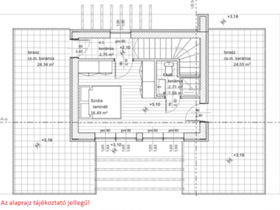
Szoba
16.49 m2
Előtér
2.75 m2
Fürdőszoba + WC
2.71 m2
Terasz
54.58 m2
Terasz
24.34 m2
Terasz
24.55 m2


Tetszett az ingatlan?

Kérdése van? Forduljon hozzánk bizalommal!

Schultheisz Brigitta

Schultheisz Brigitta

e-mail cím..
+36202504403
Üzenetküldés folyamatban
Sikeres üzenetküldés

Hitel kalkulátor

Keresse hiteltanácsadónkat!

Valkó Anita
Valkó Anita
Találatok betöltése folyamatban..
Nem kalkulálható hitel az adott paraméterekkel, kérjük csökkentse a hitelösszeget, vagy növelje a futamidőt.
Legjobb ajánlatunk
{{ offer.installmentStart|price }} induló havi törlesztő
{{ offer.fullPayableAmount|price }} teljes visszafizetés
{{ offer.interestPeriodNotAided.name }}ig fix törlesztő
{{ offer.interestPeriodAided.name }}ig fix törlesztő
Schultheisz Brigitta
Schultheisz Brigitta
Vezető ingatlan-képviselő
Üzenet küldése
Valkó Anita
Valkó Anita
hitelközvetítő
Hitel kalkulátor