Eladó ikerház - Tihany (gödrös) ingatlan ID: 163802766

 Megosztás  nyomtatás  Kedvencekhez
100 m2
alapterület
270 m2
telek
5
szoba
229 000 000 Ft


Ingatlan leírása

Északi part Ékességén ELADÓ Tihanyban egy új építésű ikerház!

Tihanyban ELADÓ egy 100 négyzetméteres, belső két szintes új építésű ikerház, saját autóbeállóval és külön 270 nm kert résszel!

"Tihany község a Balaton-felvidékenVeszprém vármegyében, a Balatonfüredi járásbanMagyarország egyik legszebb fekvésű települése, látványos táji és természeti adottságokban bővelkedő község a Balatonba nyúló Tihanyi-félszigeten. A község központjában áll a Tihanyi Bencés Apátság, amelyet 1055 -ben alapított.

Hallottál már a tihanyi visszhangról?

A legenda szerint a Balatonról partra mosott "kecskekörmök" kapcsolatos, amelyek valójában őskori kagylók sarkai. A történet szerint élt a félszigeten egy világszép hercegnő, akinek mindenki messze földről a csodájára járt. Ám mindhiába...."Ő ugyanis a tihanyi visszhang...."

Amennyiben szeretnéd tudni a történet végét, gyere és nézd meg te magad Tihany csodaszép vonulatait, amelyet az ingatlanból is élvezhetsz, ugyanis IGEN van balatoni panoráma az emeleten! 

Álmodozol egy új, modern és kényelmes otthonról? Akkor ez az ingatlan tökéletes választás lehet számodra! Garantálom, hogy kiváló elhelyezkedéses végett miatt egyenesen az első pillanatban beleszeretsz!

A CASANETWORK VESZPRÉM Ingatlaniroda eladásra kínálja a 2089 referenciaszámú,  ikerházat!

A ház jellemzői:

- Az ingatlan ikerház, de nincs közös fala, egymástól tartószerkezetileg független

- A földszinten egy amerikai konyhás nappalival egy szobával és egy fürdőszobával

- Az emeleten 3 szoba került kialakításra plusz egy kamra és egy mellékhelyiség

- Fűtése: elektromos padlófűtés

- Falazata: A külső 30 cm vastagságú hagyományos égetett agyag téglából készült, a belső fal 25 cm vastagságú vázkerámia téglából

- Műanyag hang-és hő szigetelt nyílászárókkal felszerelt

- Két külön terasszal ellátott, egy déli tájolásúval amely 21 nm és egy északi tájolásúval amely 12 nm

- Az udvarban kényelmesen elfér 2 autó is

- Klíma kiállások illetve a napelem előkészítése megtörtént, igény szerint megvalósítható az új tulajdonos számára

Jelenleg az ingatlanból a burkolatok hiányoznak, így kb. 90% -os készültségi szinten eladó az ikerház, (de minden megbeszélés tárgyát képzi), ugyanis a munkálatok folyamatban vannak jelenleg is! ( pl. hideg-meleg burkolatok..stb..)

Frekventált helyen található, a szabad STRAND mindössze 300 méterre, könnyen megközelíthető akár biciklivel is akár autóval akár tömegközlekedéssel is! A közelben minden megtalálható, rengeteg vendéglátó egység, boltok, posta, gyógyszertár...stb...!

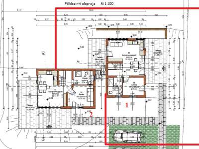
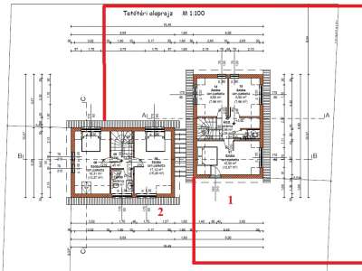
Az alaprajzon (1. piros számmal) jelöltem a szóban forgandó Eladó ingatlant és az ahhoz tartozó területet!

Tel: 06 20 334 0399

Amennyiben a 2089 referencia számú ikerház, vagy bármely a kínálatunkban található családi ház, telek felkeltette érdeklődését, forduljon hozzám bizalommal.

Irodánk az ingatlan vásárlással összefüggő teljes körű ügyvédi, ill. díjmentes, bank semleges hitel-ügyintézéssel áll rendelkezésére.

CasaNetWork -  A civilizált ingatlanértékesítés artériája!

Bővebben...


Ingatlan jellemzők

Közművek

gázvezetékes gáz
villanybevezetve (230 - 400 Volt)
vízvan, saját vízórával
csatornacsatorna közműhálózatba bekötve

Felszereltség

telefonvan telefon
TVdigitális TV adás
internetinternet optikai kábel
fűtéspadlófűtés
komfortfokozatösszkomfort

Ingatlan tulajdonságai

építési módtégla
belső állapotúj építésű
külső állapotkiváló külső
kilátáspanorámás
parkolásparkolás beállón

Helyiségek

Amerikai konyhás nappali
28.05 m2
Szoba
8.7 m2
Fürdőszoba + WC
5.41 m2
Közlekedő
4.35 m2
Szoba
12.67 m2
Szoba
7.66 m2
Szoba
7.66 m2
Terasz
21.66 m2
Terasz
12.34 m2


Tetszett az ingatlan?

Kérdése van? Forduljon hozzánk bizalommal!

Teleki-Balázs Bernadett

Teleki-Balázs Bernadett

e-mail cím..
+36202884378
Üzenetküldés folyamatban
Sikeres üzenetküldés

Hitel kalkulátor

Keresse hiteltanácsadónkat!

Valkó Anita
Valkó Anita
Találatok betöltése folyamatban..
Nem kalkulálható hitel az adott paraméterekkel, kérjük csökkentse a hitelösszeget, vagy növelje a futamidőt.
Legjobb ajánlatunk
{{ offer.installmentStart|price }} induló havi törlesztő
{{ offer.fullPayableAmount|price }} teljes visszafizetés
{{ offer.interestPeriodNotAided.name }}ig fix törlesztő
{{ offer.interestPeriodAided.name }}ig fix törlesztő
Teleki-Balázs Bernadett
Teleki-Balázs Bernadett
Ingatlan-képviselő
Üzenet küldése
Valkó Anita
Valkó Anita
hitelközvetítő
Hitel kalkulátor