Eladó téglalakás - Balatonalmádi ingatlan ID: 156202419

 Megosztás  nyomtatás  Kedvencekhez
71 m2
alapterület
740 m2
telek
3
szoba
Földszint
107 000 000 Ft


Ingatlan leírása

Balatonalmádiban új építésű társasházi lakás eladó

A veszprémi Casanetwork iroda eladásra kínálja a 2419-es számú ingatlanját Balatonalmádiban csendes, nyugodt helyen.

-AZ INGATLAN FŐBB JELLEMZŐI:

-Új építésű lakás

-2 szoba plusz nappali

-külön fürdő és WC

-átadás várhatóan 2025 decemberében

-az ingatlan fűtéséről, hűtéséről, és meleg víz ellátásáról hőszivattyú gondoskodik.

-a terasz a lakásból is elérhető

-kizárólagos használatú kert

-elektromos kapunyitás

-parkolás az udvaron térkövezett parkolóban 

-3 rétegű üvegezés

-alumínium redőnyök

-központ, strand, iskola, bevásárlási lehetőség 1500 méteren belül

Balatonalmádi egy kedvelt és folyamatosan fejlődő település. A Balaton és a Bakony közelsége remek lehetőség a befektetésre és a nyugodt életre.

Érdemes személyesen is megtekinteni, hogy jobban megismerhesse a helyet és annak lehetőségeit. Ha bármilyen kérdése van, szívesen állok rendelkezésére!

Az ingatlan vásárlásához hitel igényelhető!


Amennyiben a  CasaNetWork által kínált ÜZLETHELYISÉG vagy bármely a kínálatunkban található családi ház, téglalakás, új építésű lakás vagy akár telek/földterület  felkeltette érdeklődését, forduljon hozzám bizalommal.

 Béndek Péter - Ingatlan-képviselő

+36 20 420 8120

 CasaNetWork -  A civilizált ingatlanértékesítés artériája!

 Amennyiben hitelben is gondolkodik, kollégám díjmentes, bank semleges ügyintézéssel áll rendelkezésére. 


Bővebben...


Ingatlan jellemzők

Közművek

villanybevezetve (230 Volt)
vízvíz az épületben
gáznincs gáz a közelben
csatornacsatorna közműhálózatba bekötve

Felszereltség

komfortfokozatösszkomfort
klímasaját split klíma
fűtéshőszivattyú

Ingatlan tulajdonságai

építési módtégla
belső állapotkiváló
külső állapothőszigetelt
parkolásparkolás udvarban

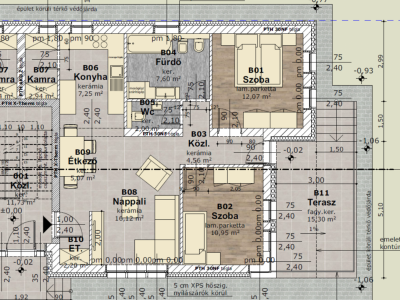
Helyiségek

Szoba
12 m2
Szoba
11 m2
Közlekedő
4.56 m2
Fürdőszoba
7.6 m2
WC
2 m2
Konyha
7.25 m2
Kamra, Éléskamra, Spájz
2.9 m2
Nappali
16 m2
Étkező
5 m2
Előtér
2.2 m2
Terasz
15.3 m2


Tetszett az ingatlan?

Kérdése van? Forduljon hozzánk bizalommal!

Béndek Péter

Béndek Péter

e-mail cím..
+36204208120
Üzenetküldés folyamatban
Sikeres üzenetküldés

Hitel kalkulátor

Keresse hiteltanácsadónkat!

Valkó Anita
Valkó Anita
Találatok betöltése folyamatban..
Nem kalkulálható hitel az adott paraméterekkel, kérjük csökkentse a hitelösszeget, vagy növelje a futamidőt.
Legjobb ajánlatunk
{{ offer.installmentStart|price }} induló havi törlesztő
{{ offer.fullPayableAmount|price }} teljes visszafizetés
{{ offer.interestPeriodNotAided.name }}ig fix törlesztő
{{ offer.interestPeriodAided.name }}ig fix törlesztő
Béndek Péter
Béndek Péter
Ingatlan-képviselő
Üzenet küldése
Valkó Anita
Valkó Anita
hitelközvetítő
Hitel kalkulátor