Eladó téglalakás - Balatonalmádi (Vörösberény) ingatlan ID: 156202432

 Megosztás  nyomtatás  Kedvencekhez
110 m2
alapterület
947 m2
telek
4
szoba
149 900 000 Ft


Ingatlan leírása

Balatonalmádi ÚJ ÉPÍTÉSŰ LAKÁS

Veszprémi CASANETWORK iroda ELADÁSRA KÍNÁLJA A 2432-ES SZÁMÚ ÚJ ÉPÍTÉSŰ lakását Balatonalmádiban.

A Balatonra részbeni panorámával rendelkező, Balatonalmádi belterületén, a vörösberényi részen eladásra kínálom az új építésű  háromlakásos társasház téglalakásait. A lakásokhoz látványtervek készültek. A jóváhagyott kivitelezési dokumentáció alapján a földszint + tetőteres kialakítású lakások impozáns megjelenésűek és családi környezetbe illő kialakítással várják az új tulajdonosokat.

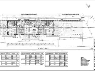
A terveken látható két szélső lakás alaprajzi elrendezése ugyanaz, míg a középső lakás a nappali növelése céljából 1 hálószobával kevesebbel rendelkezik.Ez a hirdetés a középső lakás.

Mindegyik lakáshoz tartozik átlag 35 m2 terasz, illetve a két szélső lakáshoz nagyobb kertterület is  300 m2 és 65 m2 méretekben.

A lakásokra vonatkozó főbb műszaki paraméterek az alábbiak:

- min. "A+" energetikai besorolással,

- 38 cm-es kerámia (porotherm, leiertherm) falazat, 12 cm-es grafitos hőszigeteléssel,

- válaszfalak szintén kerámia falazattal építve,

- fűtés és meleg vízellátás levegő-víz hőszivattyúval, padló-, és mennyezet fűtéssel/hűtéssel,

- műanyag külső nyílászárók 3 rétegű üvegezéssel,

- monolit vasbeton födémmel,

- teraszra kivezető ajtók elhúzós kivitelben készülnek.

- a lakásokhoz felszíni beállók tartoznak.

Az új tulajdonos által kiválasztott burkolatokkal, szerelvényekkel és szaniterekkel kerül kivitelezésre a ház.

Amennyiben a VESZPRÉMI CASANETWORK IRODA által kínált 2432-es számú INGATLAN felkeltette érdeklődését, kérem hívjon a megadott telefonszámon.

Irodánk az ingatlan vásárlással összefüggő teljes körű ügyvédi, illetve díjmentes, bank semleges hitel-ügyintézéssel áll rendelkezésére.

CasaNetwork - A civilizált ingatlanértékesítés artériája


Bővebben...


Ingatlan jellemzők

Közművek

gázgázcsonk a telken
villanybevezetve (230 Volt)
vízvíz a telken
csatornacsatorna a telken

Felszereltség

klímaközponti klíma
fűtéshőszivattyú

Ingatlan tulajdonságai

építési módtégla
parkolásparkolás udvarban
energetikai tanúsítványAA

Helyiségek

Amerikai konyha
14.53 m2
Nappali
25.62 m2
Kazánház
3.42 m2
Lépcsőház
2.42 m2
Szélfogó
4.54 m2
WC
2.47 m2
Előtér
3.18 m2
Szoba
7.66 m2
Szoba
11.67 m2
Szoba
11.67 m2
Fürdőszoba
6.31 m2


Tetszett az ingatlan?

Kérdése van? Forduljon hozzánk bizalommal!

Béndek Péter

Béndek Péter

e-mail cím..
+36204208120
Üzenetküldés folyamatban
Sikeres üzenetküldés

Hitel kalkulátor

Keresse hiteltanácsadónkat!

Valkó Anita
Valkó Anita
Találatok betöltése folyamatban..
Nem kalkulálható hitel az adott paraméterekkel, kérjük csökkentse a hitelösszeget, vagy növelje a futamidőt.
Legjobb ajánlatunk
{{ offer.installmentStart|price }} induló havi törlesztő
{{ offer.fullPayableAmount|price }} teljes visszafizetés
{{ offer.interestPeriodNotAided.name }}ig fix törlesztő
{{ offer.interestPeriodAided.name }}ig fix törlesztő
Béndek Péter
Béndek Péter
Ingatlan-képviselő
Üzenet küldése
Valkó Anita
Valkó Anita
hitelközvetítő
Hitel kalkulátor