Eladó téglalakás - Balatonalmádi (Városközpont) ingatlan ID: 163701891

 Megosztás  nyomtatás  Kedvencekhez
53 m2
alapterület
3
szoba
1. emelet
112 631 220 Ft


Ingatlan leírása

Ahol a víz közelsége és a luxus találkozik

A CasaNetWork Balatonalmádi Ingatlaniroda eladásra kínálja az 1891. számú, kivételes tulajdonságokkal bíró strandközeli,  luxuslakását Balatonalmádiban.

Ahol a Balaton csak néhány lépés – és kezdődhet a pihenés.

Balatonalmádiban, a közkedvelt Wesselényi strand szomszédságában kínálunk eladásra egy új építésű, exkluzív apartmant, amely a modern kényelmet és a balatoni életérzést egyesíti.
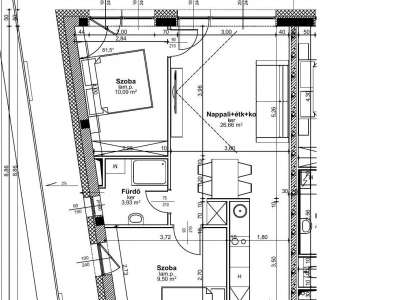
Az 53 m²-es, második emeleti lakás tágas nappalival és amerikai konyhával, valamint két külön hálószobával rendelkezik, így ideális választás pároknak, kisebb családoknak vagy akár befektetésre is.

A lakáshoz tartozik egy impozáns, 31 m²-es terasz, amely tökéletes helyszín a reggeli kávéhoz, esti borozgatáshoz vagy baráti beszélgetésekhez a nyári estéken.
A belső terek kialakításánál a minőség és a letisztultság volt a fő szempont: korszerű gépészet, energiatakarékos megoldások és modern anyaghasználat biztosítja, hogy ez az otthon hosszú távon is értékálló maradjon.

Az apartmanház mindössze 20 méterre található a Balaton partjától, így a strand, a sétány és a környék éttermei, kávézói gyalog néhány percen belül elérhetők.
Ez az ingatlan nemcsak lakóhelyként, hanem életstílusként is különleges – egy hely, ahol a hétköznapok is nyaralásnak érződnek.

Amennyiben a CasaNetWork Balatonalmádi Ingatlaniroda által hirdetett balatonalmádi lakás, vagy bármely a kínálatunkban található ingatlan felkeltette érdeklődését, kérem  hívjon a megadott telefonszámon.

06205299992


Vásárolna, de nincs rá keret? Kollégám díjmentes, banksemleges hitelügyintézéssel áll rendelkezésére.


CasaNetWork -  A civilizált ingatlanértékesítés artériája.


 
Bővebben...


Ingatlan jellemzők

Közművek

villanybevezetve (230 Volt)
vízvan, saját vízórával
csatornacsatorna közműhálózatba bekötve

Felszereltség

komfortfokozatösszkomfort

Ingatlan tulajdonságai

építési módtégla
belső állapotLuxus
külső állapothőszigetelt
kilátásutcára néző kilátás
parkolásingyenes parkoló utcán

Helyiségek

Amerikai konyhás nappali
26.46 m2
Erkély
31 m2
Szoba
10.09 m2
Szoba
9.5 m2
Fürdőszoba
3.93 m2
WC
1.46 m2
Eladótér
1.08 m2


Tetszett az ingatlan?

Kérdése van? Forduljon hozzánk bizalommal!

Szenttornyay Gergely

Szenttornyay Gergely

e-mail cím..
+36203781155
Üzenetküldés folyamatban
Sikeres üzenetküldés

Hitel kalkulátor

Keresse hiteltanácsadónkat!

Valkó Anita
Valkó Anita
Találatok betöltése folyamatban..
Nem kalkulálható hitel az adott paraméterekkel, kérjük csökkentse a hitelösszeget, vagy növelje a futamidőt.
Legjobb ajánlatunk
{{ offer.installmentStart|price }} induló havi törlesztő
{{ offer.fullPayableAmount|price }} teljes visszafizetés
{{ offer.interestPeriodNotAided.name }}ig fix törlesztő
{{ offer.interestPeriodAided.name }}ig fix törlesztő
Szenttornyay Gergely
Szenttornyay Gergely
Ingatlan-képviselő
Üzenet küldése
Valkó Anita
Valkó Anita
hitelközvetítő
Hitel kalkulátor