Eladó téglalakás - Szolnok (Belváros) ingatlan ID: 174602187

 Megosztás  nyomtatás  Kedvencekhez
71 m2
alapterület
3
szoba
Földszint
81 650 000 Ft


Ingatlan leírása

Szolnok belvárosában exkluzív lakások 34-108 nm-ig eladók!

A CasaNetWork Ingatlanhálózat ceglédi irodája eladásra kínálja  174602187 ID számú lakást liftes társasházban.

Videó elérhető: https://www.youtube.com/watch?v=a3N1KK8lL7g

ELADÓ Szolnokon belvárosában, exkluzív 32 lakásos társasház 1. számú lakása, melynek átadása 2026. III. negyedévében várható. Jelen ingatlan a földszinten helyezkedik el és 71 m² fűtött lakótérrel rendelkezik. 

A lakásokhoz külön helyrajzi számmal rendelkező garázs vásárolható, mérete 17 nm. Ára: 12.000.000 Ft, vagy udvari beálló 6.000.000 Ft. Továbbá tárolók is rendelkezésre állnak, megvásárolhatóak.

A társasházban több méretű ingatlan elérhető 34 nm-től egészen 108 nm-es lakásig. 

Az ingatlan modern, energiatakarékos kialakítású, ideális választás egyedülállók, párok, családok számára,  akik jól megközelíthető környezetben keresnek új otthont a belvárosban. A lakás kulcsrakész állapotban kerül átadásra 2026 II. negyedévében.

100 méterre a városközpont, másik irányba 500 méterre a Tisza part található.

Ügyfeleink számára díjmentes, bankfüggetlen hitelügyintézést biztosítunk. Irodánk teljes körű segítséget tud nyújtani hitelekhez és az összes államilag finanszírozott családi támogatásokhoz!

Megtekintése kizárólag előre egyeztetett időpontban lehetséges!

Amennyiben a CasaNetWork – Cegléd kínálatában szereplő, 174602187 azonosítószámú új építésű szolnoki lakás vagy bármely más ingatlan felkeltette érdeklődését, forduljon hozzánk bizalommal a megadott elérhetőségeken!

Felhívjuk figyelmét, hogy a hirdetésben szereplő információk megbízónktól származnak, ezért azok pontosságáért felelősséget nem tudunk vállalni.

CasaNetWork – Ingatlanban otthon vagyunk.

Bővebben...


Ingatlan jellemzők

Közművek

villanybevezetve (230 Volt)
vízvan, saját vízórával
csatornacsatorna közműhálózatba bekötve

Felszereltség

internetISDN4
fűtésházközponti egyedi méréssel
komfortfokozatösszkomfort
akadálymentesítésrészben akadálymentesített
bútorozottságbútorozatlan

Ingatlan tulajdonságai

építési módtégla
belső állapotúj építésű
külső állapotfelújított külső
kilátásutcára néző kilátás
energetikai tanúsítványA+
tájoláskeleti tájolás
parkolásparkolás garázsban

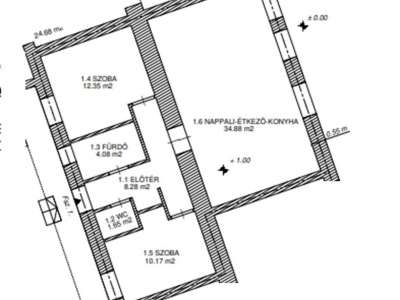
Helyiségek

Előtér
8.28 m2
Amerikai konyhás nappali
34.88 m2
Szoba
12.35 m2
Szoba
10.17 m2
Fürdőszoba
4.08 m2
WC
1.65 m2


Tetszett az ingatlan?

Kérdése van? Forduljon hozzánk bizalommal!

Üzenetküldés folyamatban
Sikeres üzenetküldés

Hitel kalkulátor

Keresse hiteltanácsadónkat!

Füléné Mihai Ágnes
Füléné Mihai Ágnes
Találatok betöltése folyamatban..
Nem kalkulálható hitel az adott paraméterekkel, kérjük csökkentse a hitelösszeget, vagy növelje a futamidőt.
Legjobb ajánlatunk
{{ offer.installmentStart|price }} induló havi törlesztő
{{ offer.fullPayableAmount|price }} teljes visszafizetés
{{ offer.interestPeriodNotAided.name }}ig fix törlesztő
{{ offer.interestPeriodAided.name }}ig fix törlesztő
Kiss Katalin
Kiss Katalin
Irodavezető, Értékbecslő - Cegléd,
Üzenet küldése
Füléné Mihai Ágnes
Füléné Mihai Ágnes
hitelközvetítő
Hitel kalkulátor