Eladó üzlethelyiség - Törökszentmiklós (Óball) ingatlan ID: 166300941

 Megosztás  nyomtatás  Kedvencekhez
90 m2
alapterület
1 263 m2
telek
3
szoba
25 900 000 Ft


Ingatlan leírása

Eladó üzletheliység Törökszentmiklós-Óballán!

A  törökszentmiklósi  CasaNetWork ingatlaniroda megvételre kínál Törökszentmiklós-Óballán egy  vendéglátó egységet az alábbi paraméterekkel:

-1985-ös építés tégla falazat

-2024-ben belső felújítás történt

-fa hőszigetelt nyílászárók

-kandallós fűtés

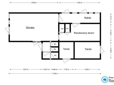
-egy nagyméretű söntés, rendezvényterem, raktár , vizesblokkok, tárolók és egy hangulatos kiülős helyiségek alkotják az ingatlant

-az üzlethelyiség tevékenysége: kocsmai vendéglátás

-tiszta, kultúrált körülmények

-stabil ügyfélkör és folyamatos rendezvények, főzések

-csendes, hangulatos, autentikus falusi lakókörnyezet

-az Élő-Tisza 500 m, szabad strand, horgászati lehetőség

-szolnoki garzonlakáscsere is szóba jöhet


 Amennyiben a fenti 166300941-es azonosító számú eladó vendéglátó egység, vagy bármely kínálatunkban található ingatlan felkeltette érdeklődését, kérem hívjon bizalommal!

/A hirdetésben szereplő információk a megbízótól kapott adatok alapján készültek./

Irodánk teljes körű szolgáltatással áll ügyfelei rendelkezésére: hitelügyintézés, ügyvédi szolgáltatás, ingatlan értékbecslés, energetikai tanúsítvány készítése.

CasaNetWork - Ingatlanban otthon vagyunk!

Bővebben...


Ingatlan jellemzők

Közművek

villanybevezetve (230 Volt)
vízvan, saját vízórával
gáznincs gáz a közelben
csatornacsatorna közműhálózatba bekötve

Felszereltség

TVkábeltévé
fűtéskandalló
komfortfokozatkomfort
bútorozottságbútorozott

Ingatlan tulajdonságai

építési módtégla
belső állapot
külső állapotjó külső
kilátásutcára néző kilátás
parkolásparkolás beállón
tájolásészaki tájolás

Helyiségek

Söntés
37.15 m2
Raktár
10.08 m2
Raktár
12.72 m2
WC
5.89 m2
Tároló
8.51 m2
Tároló
16.2 m2


Tetszett az ingatlan?

Kérdése van? Forduljon hozzánk bizalommal!

Csőke István

Csőke István

e-mail cím..
+36204329004
Üzenetküldés folyamatban
Sikeres üzenetküldés

Hitel kalkulátor

Keresse hiteltanácsadónkat!

Erdei Bernadett Erika
Erdei Bernadett Erika
Találatok betöltése folyamatban..
Nem kalkulálható hitel az adott paraméterekkel, kérjük csökkentse a hitelösszeget, vagy növelje a futamidőt.
Legjobb ajánlatunk
{{ offer.installmentStart|price }} induló havi törlesztő
{{ offer.fullPayableAmount|price }} teljes visszafizetés
{{ offer.interestPeriodNotAided.name }}ig fix törlesztő
{{ offer.interestPeriodAided.name }}ig fix törlesztő
Csőke István
Csőke István
Kiemelt ingatlanszakértő
Üzenet küldése
Erdei Bernadett Erika
Erdei Bernadett Erika
hitelközvetítő
Hitel kalkulátor