Kiadó téglalakás - Gödöllő (Belváros) ingatlan ID: 166401945

 Megosztás  nyomtatás  Kedvencekhez
51 m2
alapterület
2
szoba
Földszint
230 000 Ft


Ingatlan leírása

Belvárosi lakás, felszíni parkolóval

CasaNetWork Gödöllő Ingatlaniroda kínálatában BÉRBEADÓ társasházi lakás  a Dózsa Gy úton (Szilhát utca sarkán), hosszútávra. 

A lakás frissen festett, részben bútorozott, a képeknek megfelelően. 

Egy világos, erkélyes nappali és  egy félszobát kínál a kedves kis lakás.  Az étkező és a konyha egylégterű, kényelmes kisebb családnak. Elektromos sütő és gázfőző áll rendelkezésre. 

Az abalakok jól szigetelő thermo üveggel és  redőnnyel felszereltek. Kondenzációs gázkazán biztosítja a fűtést, minden egyedi mérés alapján fizetendő. Alacsony a közös költsége. (12,500 Ft/hó). 2 havi kuciót kér a tulajdonos.  

1 gépkocsi részére van felszínii beálló, ami sorompóval lezárt. 

Ingyenes hitel tanácsadással, ügyvédi kapcsolattal és rugalmas időbeosztással állunk kedves ügyfeleink rendelkezésére! CASANETWORK - Ingatlanban otthon vagyunk

Bővebben...


Ingatlan jellemzők

Közművek

villanybevezetve (230 Volt)
vízvan, saját vízórával
csatornacsatorna közműhálózatba bekötve
gázgáz az épületben

Felszereltség

fűtésgázkazán
komfortfokozatösszkomfort
akadálymentesítésnem akadálymentesített
bútorozottságrészben bútorozott
klímanincs klíma

Ingatlan tulajdonságai

építési módcsúsztatott zsalus vasbeton
belső állapot
külső állapotátlagos külső
kilátásutcára néző kilátás
parkolásparkolás beállón
közösköltség12 500 Ft
tájoláskelet-nyugati tájolás

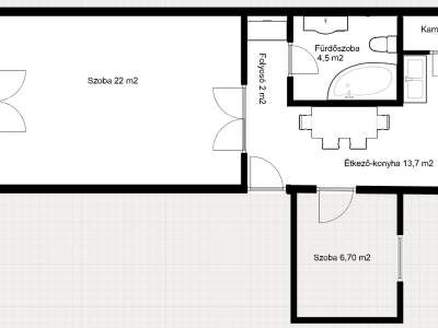
Helyiségek

Nappali
22 m2
Félszoba (kisszoba)
6.7 m2
Konyha + étkező
13.7 m2
Kamra, Éléskamra, Spájz
1.6 m2
Fürdőszoba + WC
4.5 m2
Folyosó
2.5 m2
Terasz
3 m2


Tetszett az ingatlan?

Kérdése van? Forduljon hozzánk bizalommal!

Szilágyi Krisztina

Szilágyi Krisztina

e-mail cím..
+36205092022
Üzenetküldés folyamatban
Sikeres üzenetküldés
Szilágyi Krisztina
Szilágyi Krisztina
Vezető ingatlan-képviselő
Üzenet küldése