Eladó családi ház - Abony ingatlan ID: 174602184

 Megosztás  nyomtatás  Kedvencekhez
103 m2
alapterület
752 m2
telek
3
szoba
74 000 000 Ft


Ingatlan leírása

Eladó családi ház Abonyban, csendes zsákutcában.

A CasaNetWork Ingatlanhálózat eladásra kínálja a 174602184 számú családi házat Abonyban, jó környéken.

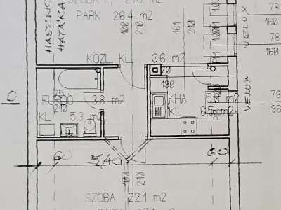
Eladó Abonyban, egy csendes zsákutcában található igényes családi ház, amely kiváló lehetőséget kínál lakhatásra és vállalkozásra egyaránt. A 752 m²-es telken elhelyezkedő, 103 m² alapterületű, 2003-ban épült, földszintes tégla családi ház külső falai 10 cm vastag hőszigeteléssel ellátottak, a padlás szigetelt. Az ingatlan fűtését kondenzációs gázkazán biztosítja, műanyag nyílászárókkal rendelkezik, melyek redőnnyel felszereltek, valamint klíma is beépítésre került. A belső berendezés nagy része a vételár részét képezi. A ház belső elosztása tágas: 30 m²-es előszoba, 16,8 m²-es és 13,53 m²-es szobák, egy világos, 30 m²-es amerikai konyhás nappali, 6,6 m²-es kamra és egy 6 m²-es fürdőszoba biztosítja a kényelmes mindennapokat. Az udvaron három gépkocsi számára fedett beállási lehetőség található. A ház mellett egy különálló, kétszintes épület helyezkedik el, melynek alsó szintjén egy jelenleg is működő, 38,9 m²-es szépségszalon található, amelynek fűtése konvektorral és klímával megoldott. A szalon mögött kapott helyet egy 26,4 m²-es garázs, ahol ipari áram is rendelkezésre áll. Az emeleti szintre külső fém lépcső vezet, itt két szoba található 21,6 m² és 22,1 m² alapterülettel, továbbá egy 6,5 m²-es konyha és egy 3,8 m²-es fürdőszoba, a fűtés ezen a szinten is konvektorral és klímával történik. Az udvar rendezett, nagy része térkövezett, kialakításra került sütögető, kondicionáló tér, kerti bútorok, valamint fúrt kút is rendelkezésre áll, amely tovább növeli az ingatlan komfortját és értékét. 

Különösen nagy előnye az ingatlannak, hogy az üzlethelyiség utcafrontra nyílik, így a jelenlegi tulajdonos lehetőség szerint visszabérelné az üzlethelyiséget, ami kiváló befektetési lehetőséget jelent, hiszen a lakótér és az üzlethelyiség között nincs átjárás, teljesen szeparáltak.

Amennyiben a CasaNetWork -  Cegléd által kínált, 174602184 azonosítószámú CSALÁDI HÁZ, vagy bármely más ingatlan felkeltette érdeklődését, keressen bennünket bizalommal a megadott elérhetőségek egyikén!
Felhívjuk figyelmét, hogy a hirdetésben szereplő adatok a megbízótól származnak, azok pontosságáért felelősséget nem vállalunk.

Ügyfeleink részére díjmentes, bankfüggetlen hitelügyintézést biztosítunk!

CasaNetWork – Ingatlanban otthon vagyunk.

Bővebben...


Ingatlan jellemzők

Közművek

gázvezetékes gáz
villanybevezetve (230 - 400 Volt)
vízvan, saját vízórával
csatornacsatorna közműhálózatba bekötve

Felszereltség

fűtéscirkó kazán
komfortfokozatösszkomfort
akadálymentesítésnem akadálymentesített
bútorozottságrészben bútorozott
klímasaját split klíma

Ingatlan tulajdonságai

építési módtégla
belső állapotkiváló
külső állapothőszigetelt
kilátásudvari kilátás
energetikai tanúsítványDD
tájolásdéli tájolás
parkolásparkolás garázsban

Helyiségek

Előszoba
30 m2
Szoba
16.8 m2
Szoba
13.53 m2
Amerikai konyhás nappali
30 m2
Kamra, Éléskamra, Spájz
6.6 m2
Fürdőszoba
6 m2


Tetszett az ingatlan?

Kérdése van? Forduljon hozzánk bizalommal!

Horváthné Monori Rita

Horváthné Monori Rita

e-mail cím..
+36203194018
Üzenetküldés folyamatban
Sikeres üzenetküldés

Hitel kalkulátor

Keresse hiteltanácsadónkat!

Füléné Mihai Ágnes
Füléné Mihai Ágnes
Találatok betöltése folyamatban..
Nem kalkulálható hitel az adott paraméterekkel, kérjük csökkentse a hitelösszeget, vagy növelje a futamidőt.
Legjobb ajánlatunk
{{ offer.installmentStart|price }} induló havi törlesztő
{{ offer.fullPayableAmount|price }} teljes visszafizetés
{{ offer.interestPeriodNotAided.name }}ig fix törlesztő
{{ offer.interestPeriodAided.name }}ig fix törlesztő
Horváthné Monori Rita
Horváthné Monori Rita
Ingatlan-képviselő
Üzenet küldése
Füléné Mihai Ágnes
Füléné Mihai Ágnes
hitelközvetítő
Hitel kalkulátor