Eladó családi ház - Cibakháza ingatlan ID: 183800335

 Megosztás  nyomtatás  Kedvencekhez
55 m2
alapterület
199 m2
telek
2
szoba
12 000 000 Ft


Ingatlan leírása

Cibakháza szívében eladó kertes ház

 A  Kunszentmártoni CasaNetWork ingatlaniroda megvételre kínál Cibakháza központjában egy azonnal költözhető kertes házat!

A cibakházi ingatlan jellemzői:

Amennyiben a fenti 183800335-es azonosító számú eladó kertes ház, vagy bármely kínálatunkban található ingatlan felkeltette érdeklődését, kérem hívjon bizalommal!

/A hirdetésben szereplő információk a megbízótól kapott adatok alapján készültek./

Irodánk teljes körű szolgáltatással áll ügyfelei rendelkezésére: hitelügyintézés, ügyvédi szolgáltatás, ingatlan értékbecslés, energetikai tanúsítvány készítése.

CasaNetWork - Ingatlanban otthon vagyunk!

Bővebben...


Ingatlan jellemzők

Közművek

villanybevezetve (230 - 400 Volt)
vízvan, saját vízórával
csatornacsatorna a telken
gázgáz az épületben

Felszereltség

telefontelefon a közelben
TVkábeltévé
internetszélessávú internet (> 10Mbps)
fűtésgázkazán
komfortfokozatösszkomfort
akadálymentesítésnem akadálymentesített
bútorozottságrészben bútorozott
klímamobil klíma

Ingatlan tulajdonságai

építési módvegyes
belső állapotfelújított
külső állapotfelújításra szoruló külső
kilátásutcára néző kilátás
parkolásingyenes parkoló utcán
tájoláskeleti tájolás

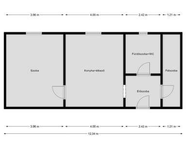
Helyiségek

Szoba
6 m2
Konyha + étkező
20 m2
Fürdőszoba + WC
5 m2
Előszoba
4 m2
Szoba
20 m2


Tetszett az ingatlan?

Kérdése van? Forduljon hozzánk bizalommal!

Drégelyvári Árpád

Drégelyvári Árpád

e-mail cím..
+36203685550
Üzenetküldés folyamatban
Sikeres üzenetküldés

Hitel kalkulátor

Keresse hiteltanácsadónkat!

Erdei Bernadett Erika
Erdei Bernadett Erika
Találatok betöltése folyamatban..
Nem kalkulálható hitel az adott paraméterekkel, kérjük csökkentse a hitelösszeget, vagy növelje a futamidőt.
Legjobb ajánlatunk
{{ offer.installmentStart|price }} induló havi törlesztő
{{ offer.fullPayableAmount|price }} teljes visszafizetés
{{ offer.interestPeriodNotAided.name }}ig fix törlesztő
{{ offer.interestPeriodAided.name }}ig fix törlesztő
Drégelyvári Árpád
Drégelyvári Árpád
Kiemelt ingatlanszakértő
Üzenet küldése
Erdei Bernadett Erika
Erdei Bernadett Erika
hitelközvetítő
Hitel kalkulátor