Eladó családi ház - Szada ingatlan ID: 166401980

 Megosztás  nyomtatás  Kedvencekhez
455 m2
alapterület
1 880 m2
telek
9
szoba
189 000 000 Ft


Ingatlan leírása

Időtálló elegancia-prémium életérzés

CasaNetWork Gödöllő Ingatlaniroda kínálatában eladó családi ház Szadán

Szada egyik legkeresettebb, csendes és modern környezetében, kínálunk megvételre egy kivételes adottságokkal rendelkező, prémium minőségű, új építésű luxus családi házat, amely a legmagasabb igényeket is kielégíti.

Az ingatlan átgondolt tervezésének és tágas tereinek köszönhetően ideális választás nagycsaládosok vagy több generáció számára is.

Főbb jellemzők:

A háromszintes, impozáns ingatlan elrendezése:

Életérzés:

Ez az ingatlan nem csupán egy ház, hanem egy életstílus. Tágas, fényárban úszó terei, modern műszaki megoldásai és kiváló elhelyezkedése révén tökéletes harmóniát teremt a luxus és a funkcionalitás között.

Ingyenes hitel tanácsadással, ügyvédi kapcsolattal és rugalmas időbeosztással állunk kedves ügyfeleink rendelkezésére! CASANETWORK - Ingatlanban otthon vagyunk

Bővebben...


Ingatlan jellemzők

Közművek

villanybevezetve (230 Volt)
vízvan, saját vízórával
csatornacsatorna közműhálózatba bekötve

Felszereltség

komfortfokozatdupla komfort
bútorozottságbútorozatlan
klímasaját split klíma
fűtéshőszivattyú

Ingatlan tulajdonságai

építési módtégla
belső állapotkiváló
kilátásudvari kilátás
tájoláskeleti tájolás
parkolásparkolás garázsban
külső állapotújszerű külső

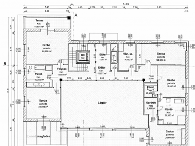
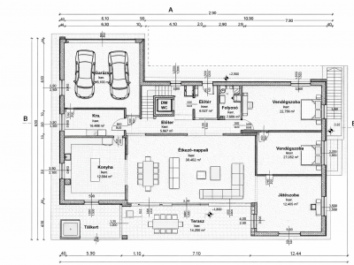
Helyiségek

Kamra, Éléskamra, Spájz
11.4 m2
Nappali
80.6 m2
Konyha
30.9 m2
Előszoba
18 m2
Vendégszoba
22 m2
Fürdőszoba
5 m2
Vendégszoba
22 m2
Fürdőszoba
4.1 m2
WC
3 m2
Szoba
30.5 m2
Mosószoba
7.3 m2
Hálószoba
29.2 m2
Galéria
13.6 m2
Szoba
24.5 m2
Szoba
23.1 m2
Fürdőszoba
12 m2
Fürdőszoba
5.5 m2
Gardrób
6 m2
Szoba
18.8 m2
Garázs
38 m2
Terasz
 m2
Terasz
 m2
Terasz
 m2
Télikert
21.6 m2
Folyosó
7.6 m2
Folyosó
20.4 m2


Tetszett az ingatlan?

Kérdése van? Forduljon hozzánk bizalommal!

Pozsonyi Anikó

Pozsonyi Anikó

e-mail cím..
+36204329665
Üzenetküldés folyamatban
Sikeres üzenetküldés

Hitel kalkulátor

Keresse hiteltanácsadónkat!

Erdei Bernadett Erika
Erdei Bernadett Erika
Találatok betöltése folyamatban..
Nem kalkulálható hitel az adott paraméterekkel, kérjük csökkentse a hitelösszeget, vagy növelje a futamidőt.
Legjobb ajánlatunk
{{ offer.installmentStart|price }} induló havi törlesztő
{{ offer.fullPayableAmount|price }} teljes visszafizetés
{{ offer.interestPeriodNotAided.name }}ig fix törlesztő
{{ offer.interestPeriodAided.name }}ig fix törlesztő
Pozsonyi Anikó
Pozsonyi Anikó
Ingatlan-képviselő
Üzenet küldése
Erdei Bernadett Erika
Erdei Bernadett Erika
hitelközvetítő
Hitel kalkulátor