Eladó családi ház - Tarnaörs ingatlan ID: 182100507

 Megosztás  nyomtatás  Kedvencekhez
105 m2
alapterület
1 145 m2
telek
3
szoba
28 900 000 Ft


Ingatlan leírása

Tarnaörsön, jó környéken, 105 nm-es, 3 + fél szobás családi ház eladó

KERT, NYUGALOM, ÉLHETŐ TEREK – AZONNAL KÖLTÖZHETŐ CSALÁDI HÁZ ELADÓ Tarnaörs KEDVELT RÉSZÉN! 

Felújított, praktikus elosztású otthon, kiváló melléképületekkel,  garázsokkal, filagóriával és igazi kertélménnyel azonnal költözhető!!!

A jászberényi CasaNetWork Ingatlaniroda megvételre kínál Tarnaörs egyik legjobb környékén, a Tarna közvetlen közelében egy 105 m²-es, kiváló elosztású, azonnal költözhető családi házat, amely egy 1145 m²-es, gondozott telken helyezkedik el.

Ez az ingatlan tökéletes választás mindazok számára, akik nyugalmat, biztonságot és jól élhető tereket keresnek, miközben fontos számukra a praktikum és a sokoldalú kihasználhatóság.

OTTHON, AMELY AZ ELSŐ PILLANATTÓL ÉLHETŐ
Az 1969-ben vályogtéglából épült ház 2002-ben felújításon esett át, így jelenlegi állapotában egy stabil, karbantartott és azonnal lakható ingatlan.

Kialakítása kifejezetten családbarát:

 A terek átgondoltak, jól használhatók, világosak, minden adott egy kényelmes mindennapi élethez.

MŰSZAKI PARAMÉTEREK – AMIRE SZÁMÍTHAT

 Ez egy olyan ház, ahol nem kell azonnali nagy beruházásban gondolkodni – költözhető, élhető, szerethető.

MELLÉKÉPÜLETEK – A PRAKTIKUM ÚJ SZINTJE
Az ingatlan egyik legnagyobb erőssége a sokoldalúan használható melléképület-együttes:

 Ez utóbbi külön épület aranyat ér a hétvégi családi, baráti összejöveteleknél, hiszen nem kell a főépületet használni!

KERT, AHOL ÉLNI LEHET – NEM CSAK NÉZNI
A 1145 m²-es telek igazi kikapcsolódást nyújt:

 A kert végében futballpálya található, ami külön öröm a gyerekeknek és a mozgás szerelmeseinek!

LOKÁCIÓ – AMI MEGKORONÁZZA AZ INGATLANT
Tarnaörs Heves vármegye déli részén, a Tarna két ága között helyezkedik el, ahol a távolban a Mátra vonulatai rajzolódnak ki – ez a látvány minden nap pluszt ad.

A környék:

 És ami igazán fontos:
300–600 méteren belül minden elérhető!

EXTRA LEHETŐSÉG – RITKA ALKALOM!
A közvetlen szomszédos ingatlan (azonos tulajdonostól) szintén eladó, így akár egy komplett családi birtok is kialakítható!

KINEK AJÁNLOM?
- családoknak
- több generációnak
- gazdálkodni vágyóknak
- vidéki nyugalmat keresőknek
- befektetőknek

ITT MINDEN ADOTT:
- biztonság
- nyugalom
- élhető terek
- rengeteg lehetőség

+ EXTRA:
A TELJES BÚTORZAT IS MEGVÁSÁROLHATÓ, MEGEGYEZÉS SZERINT!

Ne maradjon le róla!
Az ilyen adottságú, jól elhelyezkedő, azonnal költözhető ingatlanok gyorsan gazdára találnak!

 Amennyiben a fenti 182100507-es azonosító számú eladó tarnaörsi családi ház, vagy bármely kínálatunkban található ingatlan felkeltette érdeklődését, kérem hívjon bizalommal!

/A hirdetésben szereplő információk a megbízótól kapott adatok alapján készültek./

Irodánk teljes körű szolgáltatással áll ügyfelei rendelkezésére: hitelügyintézés, ügyvédi szolgáltatás, ingatlan értékbecslés, energetikai tanúsítvány készítése.

CasaNetWork - Ingatlanban otthon vagyunk!

Bővebben...


Ingatlan jellemzők

Közművek

gázvezetékes gáz
villanybevezetve (230 Volt)
vízvan, saját vízórával
csatornaszennyvíz derítő

Felszereltség

telefonnincs telefon
TVkábeltévé
internetszélessávú internet (> 10Mbps)
fűtéskonvektor
komfortfokozatösszkomfort
akadálymentesítésnem akadálymentesített
bútorozottságbútorozott
klímasaját split klíma

Ingatlan tulajdonságai

építési módvályog
belső állapotfelújított
külső állapotjó külső
kilátásvegyes kilátás
tájolásnyugati tájolás
parkolásparkolás garázsban

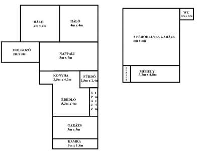
Helyiségek

Szoba
16 m2
Szoba
16 m2
Szoba
6 m2
Konyha + étkező
35 m2
Fürdőszoba + WC
5.52 m2
Kamra, Éléskamra, Spájz
5 m2
Nappali
21 m2


Tetszett az ingatlan?

Kérdése van? Forduljon hozzánk bizalommal!

Bodonyiné Erzsike

Bodonyiné Erzsike

e-mail cím..
+36204805477
Üzenetküldés folyamatban
Sikeres üzenetküldés

Hitel kalkulátor

Keresse hiteltanácsadónkat!

Erdei Bernadett Erika
Erdei Bernadett Erika
Találatok betöltése folyamatban..
Nem kalkulálható hitel az adott paraméterekkel, kérjük csökkentse a hitelösszeget, vagy növelje a futamidőt.
Legjobb ajánlatunk
{{ offer.installmentStart|price }} induló havi törlesztő
{{ offer.fullPayableAmount|price }} teljes visszafizetés
{{ offer.interestPeriodNotAided.name }}ig fix törlesztő
{{ offer.interestPeriodAided.name }}ig fix törlesztő
Bodonyiné Erzsike
Bodonyiné Erzsike
Kiemelt ingatlanszakértő
Üzenet küldése
Erdei Bernadett Erika
Erdei Bernadett Erika
hitelközvetítő
Hitel kalkulátor