A törökszentmiklósi CasaNetWork ingatlaniroda megvételre kínál egy felújított családi házat az alábbi paraméterekkel:
-2022-ben teljeskörű felújítás történt a minőségi anyagokkal, szerelvényekkel
-vízszigetelés, külső hőszigetelés /10 cm/ nemesvakolattal
-műanyag hőszigetelt nyílászárók
-új tetőszerkezet,cserép
-modern, fiatalos belső kialakítás
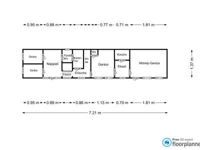
-kettő laminált parkettás szoba, tágas nappali
-nagy teljesítményű gáz kombi kazán, padló és központi fűtés
-hűtő-fűtő klíma
-dupla mosdókagylós, zuhanyzós, fürdőkádas fürdőszoba
-gépesített felső és alsó konyha
-fűtött dupla garázs elektromos garázskapuval
-közel 100 nm fűtött műhely autóbeállóval
-az udvarban külön melléképület, ami garázsnak is használható
-térkövezet, parkosított udvar
-elektromos nagykapu
-városközpont 500 m
-hitel, CSOK plusz igényelhető
Amennyiben a fenti 166300951-es azonosító számú eladó családi ház, vagy bármely kínálatunkban található ingatlan felkeltette érdeklődését, kérem hívjon bizalommal!
/A hirdetésben szereplő információk a megbízótól kapott adatok alapján készültek./
Irodánk teljes körű szolgáltatással áll ügyfelei rendelkezésére: hitelügyintézés, ügyvédi szolgáltatás, ingatlan értékbecslés, energetikai tanúsítvány készítése.
CasaNetWork - Ingatlanban otthon vagyunk!