Eladó ikerház - Újlengyel ingatlan ID: 174602159

 Megosztás  nyomtatás  Kedvencekhez
88 m2
alapterület
450 m2
telek
4
szoba
78 000 000 Ft


Ingatlan leírása

Eladó új építésű lakás Újlengyelben

A CasaNetWork Ingatlanhálózat ceglédi irodája eladásra kínálja  174602159 Id számú új építésú lakást Újlengyelben.

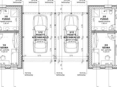
ELADÓ Újlengyelben, csendes és nyugodt környezetben eladó egy új építésű ikerház 1. számú lakása, melynek átadása 2026. szeptemberében várható. Az ingatlan 88 m² fűtött lakótérrel rendelkezik, melyhez egy 23,4 m²-es, az épülethez kapcsoltan megépített garázs tartozik. A két lakást a garázsok választják el egymástól, ezáltal biztosítva a maximális nyugalmat és intimitást a leendő tulajdonosok számára.

A ház tégla falazattal és 10 cm hőszigeteléssel készül, a válaszfalak szintén téglából épülnek. A tetőfedés Leier cseréppel történik. A fűtésről gázkazán és hőszivattyú gondoskodik, a nyári komfortot pedig beépített klíma biztosítja. A nyílászárók műanyagból készülnek, redőnnyel felszerelve. A burkolatok szabadon választhatók, hidegburkolat esetén 4.000 Ft/m², melegburkolat esetén pedig 3.000 Ft/m² értékhatárig.  Természetesen ha magasabb árú burkolatokat választ az új tulajdonos , értékegyeztetéssel megoldható.

A lakás elosztása praktikus és élhető: három hálószoba (11,55 m², 12,07 m² és 11,02 m²), tágas 24,85 m²-es nappali, 6,75 m²-es konyha, 8,25 m²-es étkező, 7,56 m²-es fürdőszoba, külön WC (1,54 m²) és egy előtér (1,65 m²) alkotják a belső teret.

Az ingatlan modern, energiatakarékos kialakítású, ideális választás családok számára, akik csendes, de jól megközelíthető környezetben keresnek új otthont. A lakás kulcsrakész állapotban kerül átadásra 2026 szeptemberében, a burkolatok és belső részletek pedig az új tulajdonos ízlésére szabhatók.

Irodánk teljes körű segítséget tud nyújtani hitelekhez és az összes államilag finanszírozott családi támogatásokhoz!

Ha felkeltette érdeklődését, hívjon bátran és szívesen megmutatom!

Megtekintése kizárólag előre egyeztetett időpontban lehetséges!

Amennyiben a CasaNetWork – Cegléd kínálatában szereplő, 174602159 azonosítószámú új építésű lakás vagy bármely más ingatlan felkeltette érdeklődését, forduljon hozzánk bizalommal a megadott elérhetőségeken!

Felhívjuk figyelmét, hogy a hirdetésben szereplő információk megbízónktól származnak, ezért azok pontosságáért felelősséget nem tudunk vállalni.

Ügyfeleink számára díjmentes, bankfüggetlen hitelügyintézést biztosítunk.

CasaNetWork – Ingatlanban otthon vagyunk.

Bővebben...


Ingatlan jellemzők

Közművek

gázvezetékes gáz
villanybevezetve (230 Volt)
vízvan, saját vízórával
csatornacsatorna közműhálózatba bekötve

Felszereltség

fűtéscirkó kazán
komfortfokozatösszkomfort
bútorozottságbútorozatlan
klímasaját split klíma

Ingatlan tulajdonságai

építési módtégla
belső állapotúj építésű
külső állapothőszigetelt
kilátásudvari kilátás
energetikai tanúsítványAA+
parkolásparkolás garázsban

Helyiségek

Szoba
11.55 m2
Szoba
12.07 m2
Nappali
24.85 m2
Szoba
11.02 m2
Fürdőszoba
7.56 m2
Előtér
1.65 m2
WC
1.54 m2
Konyha
6.75 m2
Étkező
8.25 m2
Garázs
23.4 m2


Tetszett az ingatlan?

Kérdése van? Forduljon hozzánk bizalommal!

Urbán László

Urbán László

e-mail cím..
+36203336892
Üzenetküldés folyamatban
Sikeres üzenetküldés

Hitel kalkulátor

Keresse hiteltanácsadónkat!

Füléné Mihai Ágnes
Füléné Mihai Ágnes
Találatok betöltése folyamatban..
Nem kalkulálható hitel az adott paraméterekkel, kérjük csökkentse a hitelösszeget, vagy növelje a futamidőt.
Legjobb ajánlatunk
{{ offer.installmentStart|price }} induló havi törlesztő
{{ offer.fullPayableAmount|price }} teljes visszafizetés
{{ offer.interestPeriodNotAided.name }}ig fix törlesztő
{{ offer.interestPeriodAided.name }}ig fix törlesztő
Urbán László
Urbán László
Ingatlan-képviselő
Üzenet küldése
Füléné Mihai Ágnes
Füléné Mihai Ágnes
hitelközvetítő
Hitel kalkulátor