Eladó téglalakás - Cegléd (Budai út) ingatlan ID: 174602147

 Megosztás  nyomtatás  Kedvencekhez
91 m2
alapterület
5
szoba
Földszint
68 000 000 Ft


Ingatlan leírása

Új építésű 91 m2 lakás eladó Cegléden!

Új építésű lakások eladók Cegléden – már csak két lakás maradt!

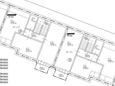
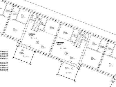
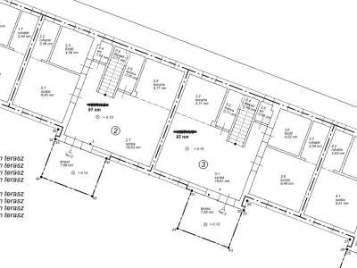
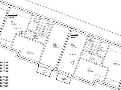
A CasaNetwork Cegléd kínálatában elérhető egy 4 lakásos, modern társasház, amelyből már csak a 2-es és 3-as számú lakás eladó (azonosító: 174602147). A hirdetésben szereplő lakás a 3 lakás.

Az ingatlan 91 m² alapterületű, sorházi jellegű épület része, zárt udvarban helyezkedik el, saját kerttel és parkolóhellyel.
A lakás idei átadású, önálló helyrajzi számmal rendelkezik, valamint fix 3% hitelre OSP konstrukcióra is alkalmas.

A lakások kétszintesek, tetőtér-beépítésesek és tégla építésűek, korszerű anyagokkal, modern technológiával és kiváló hőszigeteléssel készülnek. A tágas, napfényes helyiségek és az átgondolt belső elrendezés kényelmes, otthonos életteret biztosítanak.

A társasház Cegléd egyik kedvelt, csendes, családbarát környékén található. A közelben bevásárlási lehetőségek, iskola, óvoda és buszmegálló is megtalálhatók, így a mindennapi élethez szükséges minden karnyújtásnyira van.

Ezek a lakások ideális választást jelentenek családoknak és pároknak, akik minőségi, új építésű otthont keresnek Cegléden, zárt udvarban, saját kerttel és parkolóval.

A földszinten egy világos nappali, konyha, fürdőszoba, külön WC, szoba és tároló kapott helyet, valamint egy 7,6 m²-es terasz is tartozik a lakáshoz, amely közvetlen kapcsolatot biztosít a kerttel. Az emeleten egy közlekedő, három külön nyíló szoba, egy WC és egy 1,8 m²-es erkély található.

Az ingatlan A+ energetikai besorolású, tégla falazattal, beton alappal és hungarocell hőszigeteléssel épül. A belmagasság 2,7 méter, a nyílászárók korszerű, hő- és hangszigetelt műanyag ablakok, a tetőtérben pedig VELUX tetőablakok kerülnek beépítésre. A fűtést és a hűtést kondenzációs gázkazán, padlófűtés, valamint hőszivattyú és hűtő-fűtő klíma biztosítja, továbbá H tarifa is elérhető.

A parkolás az udvarban, saját, ingyenes parkolóhelyen megoldott. 

A lakások CSOK és banki hitel igénylésére is alkalmasak, bővebb tájékoztatás személyesen kérhető. Az alaprajzok és további információk előzetes időpont-egyeztetést követően a CasaNetwork ceglédi irodájában megtekinthetők.

Amennyiben a 174602147-es számú, új építésű társasházi tégla lakás vagy bármely más kínálatunkban szereplő ingatlan felkeltette érdeklődését, hívjon bizalommal. Kollégánk díjmentes, banksemleges hitelügyintézéssel áll rendelkezésére.

CasaNetwork – Ingatlanban otthon vagyunk!

Bővebben...


Ingatlan jellemzők

Közművek

gázvezetékes gáz
villanybevezetve (230 Volt)
vízvan, saját vízórával
csatornacsatorna közműhálózatba bekötve

Felszereltség

fűtéscirkó kazán
komfortfokozatösszkomfort
bútorozottságbútorozatlan
klímasaját split klíma

Ingatlan tulajdonságai

építési módtégla
belső állapotúj építésű, azonnal költözhető
külső állapothőszigetelt
kilátásudvari kilátás
parkolásparkolás udvarban
energetikai tanúsítványAA+

Helyiségek

Terasz
7.66 m2
Szoba
19.62 m2
Konyha
5.71 m2
Kamra, Éléskamra, Spájz
2.05 m2
Lépcsőház
2.71 m2
WC
1.02 m2
Fürdőszoba
4.56 m2
Gardrób
1.02 m2
Szoba
9.45 m2
Szoba
11.33 m2
WC
2.4 m2
Lépcsőház
1.9 m2
Folyosó
2.8 m2
Szoba
10.2 m2
Szoba
14.26 m2
Erkély
1.85 m2


Tetszett az ingatlan?

Kérdése van? Forduljon hozzánk bizalommal!

Horváthné Monori Rita

Horváthné Monori Rita

e-mail cím..
+36203194018
Üzenetküldés folyamatban
Sikeres üzenetküldés

Hitel kalkulátor

Keresse hiteltanácsadónkat!

Füléné Mihai Ágnes
Füléné Mihai Ágnes
Találatok betöltése folyamatban..
Nem kalkulálható hitel az adott paraméterekkel, kérjük csökkentse a hitelösszeget, vagy növelje a futamidőt.
Legjobb ajánlatunk
{{ offer.installmentStart|price }} induló havi törlesztő
{{ offer.fullPayableAmount|price }} teljes visszafizetés
{{ offer.interestPeriodNotAided.name }}ig fix törlesztő
{{ offer.interestPeriodAided.name }}ig fix törlesztő
Horváthné Monori Rita
Horváthné Monori Rita
Ingatlan-képviselő
Üzenet küldése
Füléné Mihai Ágnes
Füléné Mihai Ágnes
hitelközvetítő
Hitel kalkulátor