Eladó téglalakás - Újszász (Újszász) ingatlan ID: 174602077

 Megosztás  nyomtatás  Kedvencekhez
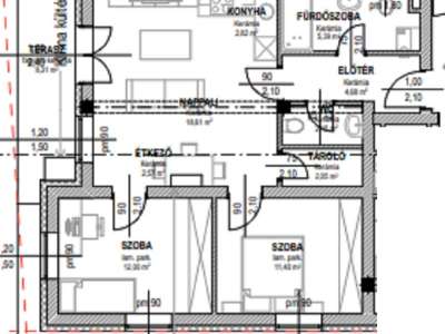
63 m2
alapterület
3
szoba
Földszint
54 924 000 Ft


Ingatlan leírása

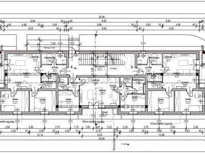
Új építésű társasházi lakások Újszászon!

A CasaNetWork Ingatlanhálózat kínálatában eladó épülő téglalakások Újszászon! 
Az ingatlan hirdetési azonosítója: 174602077

A hirdetett lakás: földszint 1-es lakás: fűtött lakótér: 60,66 nm + 4,77 nm terasz

A ház modern technológiával, kiváló minőségű anyagokból készül: Phorotherm 30-as falazat kiváló hőszigetelő képességekkel rendelkezik, így télen-nyáron komfortos hőmérsékletet biztosít. A nyílászárók hő- és hangszigetelő műanyag ablakok, amelyek fokozzák az energiahatékonyságot, és kellemes belső klímát teremtenek.

A fűtésről kondenzációs gázkazán gondoskodik padlófűtéssel. A nyári hőséget lakásonként 1 db inverteres klímaberendezés teszi elviselhetővé.

Ez az otthon minden műszaki és kényelmi igényt kielégít, amit a modern családi élet megkövetel.

Főbb jellemzők:

Műszaki adatok:

Várható átadás: 2025 év vége
Az ingatlan műszaki tervei alapján hirdetjük meg. Kérjük, vegye figyelembe, hogy a használatbavételi engedély kiadását követően kisebb m²-eltérések előfordulhatnak.

Amennyiben a CasaNetWork Cegléd által kínált, 174602077 azonosítószámú téglalakás, vagy bármely más ingatlan felkeltette érdeklődését, keressen bizalommal a megadott telefonszámon!
Felhívjuk figyelmét, hogy a hirdetésben szereplő adatok a megbízótól származnak, azok pontosságáért felelősséget nem vállalunk.

Ügyfeleink részére díjmentes, bankfüggetlen hitelügyintézést biztosítunk! 2025 augusztusától elérhetőek a 3%-os lakáshitelek első lakásvásárlóknak!

CasaNetWork – Ingatlanban otthon vagyunk.

Bővebben...


Ingatlan jellemzők

Közművek

gázvezetékes gáz
villanybevezetve (230 Volt)
vízvan, saját vízórával
csatornacsatorna közműhálózatba bekötve

Felszereltség

fűtéspadlófűtés
komfortfokozatösszkomfort
bútorozottságbútorozatlan
klímasaját split klíma

Ingatlan tulajdonságai

építési módtégla
belső állapotúj építésű
külső állapothőszigetelt
kilátásudvari kilátás
parkolásparkolás udvarban
energetikai tanúsítványAA+
tájoláskeleti tájolás

Helyiségek


Tetszett az ingatlan?

Kérdése van? Forduljon hozzánk bizalommal!

Üzenetküldés folyamatban
Sikeres üzenetküldés

Hitel kalkulátor

Keresse hiteltanácsadónkat!

Füléné Mihai Ágnes
Füléné Mihai Ágnes
Találatok betöltése folyamatban..
Nem kalkulálható hitel az adott paraméterekkel, kérjük csökkentse a hitelösszeget, vagy növelje a futamidőt.
Legjobb ajánlatunk
{{ offer.installmentStart|price }} induló havi törlesztő
{{ offer.fullPayableAmount|price }} teljes visszafizetés
{{ offer.interestPeriodNotAided.name }}ig fix törlesztő
{{ offer.interestPeriodAided.name }}ig fix törlesztő
Kiss Katalin
Kiss Katalin
Irodavezető, Értékbecslő - Cegléd,
Üzenet küldése
Füléné Mihai Ágnes
Füléné Mihai Ágnes
hitelközvetítő
Hitel kalkulátor