Eladó üzlethelyiség - Szolnok (Északnyugati városrész) ingatlan ID: 155806555

 Megosztás  nyomtatás  Kedvencekhez
533 m2
alapterület
498 m2
telek
3
szoba
99 990 000 Ft


Ingatlan leírása

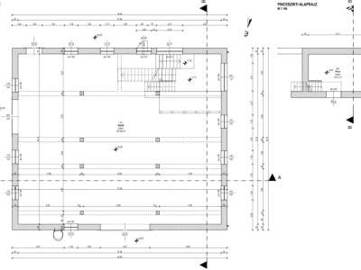
Szolnoki kétszintes, 533m2-es ingatlan eladó!

A Szolnoki CasaNetWork ingatlaniroda megvételre kínál egy 533m2-es tégla épületet !

Az ingatlan főbb jellemzői:

- Szolnok Északi-nyugati részén helyezkedik el, az 4-es főút felhajtójától 1800 méterre

- 498 m2-en található, kerítéssel teljesen körbehatárolt

- a közművek közül víz, villany, gáz és csatorna is bevezetésre került

- az épület téglából készült

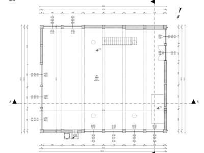
- két szintes, amely a következőképpen került kialakításra: pince 16 m2, földszint 257 m2, emelet 260 m2

- a pince és a földszinti rész igényes felújításon esett át, a földszinti rész ipari minőségű beton burkolatot kapott, bevezetésre került a 220V és a 380V

az áru mozgatását meggyorsítja 1 db ipari garázskapu és 1db automata üveg ajtó

a hűtést és fűtést 2db saját nagy teljesítményű split klíma biztosítja ( 7,5 KW, 5,2 KW )

- a parkolást 8 db kialakított magánparkoló segíti

- a telephelyet éjszaka biztonsági szolgálat őrzi

- a létesítmény elhelyezkedéséből és az adottságainak köszönhetően több célra is alkalmas: üzlet, raktár, üzem stb.

 Amennyiben a fenti 155806555-ös azonosító számú eladó üzlethelyiség, vagy bármely kínálatunkban található ingatlan felkeltette érdeklődését, kérem hívjon bizalommal!

/A hirdetésben szereplő információk a megbízótól kapott adatok alapján készültek./

Irodánk teljes körű szolgáltatással áll ügyfelei rendelkezésére: hitelügyintézés, ügyvédi szolgáltatás, ingatlan értékbecslés, energetikai tanúsítvány készítése.

CasaNetWork - Ingatlanban otthon vagyunk!


Bővebben...


Ingatlan jellemzők

Közművek

gázvezetékes gáz
villanybevezetve (230 - 400 Volt)
vízvan, saját vízórával
csatornacsatorna közműhálózatba bekötve

Felszereltség

telefontelefon a közelben
TVkábeltévé
internetinternet optikai kábel
fűtésklímás hűtés-fűtés
komfortfokozatösszkomfort
akadálymentesítésnem akadálymentesített
bútorozottságbútorozatlan

Ingatlan tulajdonságai

építési módtégla
belső állapotújszerű
külső állapothőszigetelt
kilátásudvari kilátás
parkolásparkolás udvarban
tájolásészaknyugati tájolás
közösköltség30 000 Ft

Helyiségek

Pince
16 m2
Üzlethelyiség
257 m2
Raktár
260 m2


Tetszett az ingatlan?

Kérdése van? Forduljon hozzánk bizalommal!

Garamvölgyi Gábor

Garamvölgyi Gábor

e-mail cím..
+36202890849
Üzenetküldés folyamatban
Sikeres üzenetküldés

Hitel kalkulátor

Keresse hiteltanácsadónkat!

Erdei Bernadett Erika
Erdei Bernadett Erika
Találatok betöltése folyamatban..
Nem kalkulálható hitel az adott paraméterekkel, kérjük csökkentse a hitelösszeget, vagy növelje a futamidőt.
Legjobb ajánlatunk
{{ offer.installmentStart|price }} induló havi törlesztő
{{ offer.fullPayableAmount|price }} teljes visszafizetés
{{ offer.interestPeriodNotAided.name }}ig fix törlesztő
{{ offer.interestPeriodAided.name }}ig fix törlesztő
Garamvölgyi Gábor
Garamvölgyi Gábor
Ingatlanszakértő
Üzenet küldése
Erdei Bernadett Erika
Erdei Bernadett Erika
hitelközvetítő
Hitel kalkulátor