Kiadó raktár - Szolnok (Széchenyi-lakótelep) ingatlan ID: 155806709

 Megosztás  nyomtatás  Kedvencekhez
1 501 m2
alapterület
2 000 m2
telek
15
szoba
4 400 €


Ingatlan leírása

Szolnok belterületén 1501 m2-es csarnok raktár kiadó!

A Szolnoki CasaNetWork ingatlaniroda bérlésre kínál egy 1501 m2-es csarnok raktárt!

Az ingatlan főbb jellemzői:

- Szolnok Északi részén helyezkedik el, az M4-es autóút felhajtójától 1900 méterre

-2000 m2-en található, kerítéssel teljesen körbehatárolt

- a közművek közül víz, villany, vezetékes gáz és csatorna is bevezetésre került

-az épület két ütemben épült, első ütemben a hátsó raktár rész, majd 2. ütemben épült a raktár elé a kétszintes irodai rész

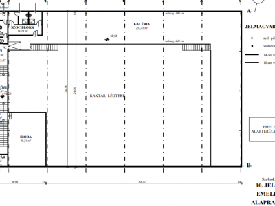
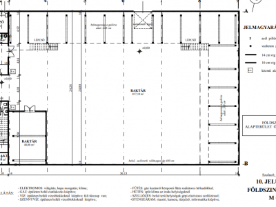
- funkció: a földszinten kiszolgáló helyiségek és raktár, az emeleten irodák és galériás kialakítással raktár. A vertikális közlekedést lépcsők biztosítják. Felmenő szerkezet acél vázszerkezet

-a falazat szerelt jellegű, hőszigetelt burkolattal 

- tetőfedés szerelt jellegű, hőszigeteléssel

- nyílászáró szerkezetek: a kapuk lamellás, felfelé gördülő kivitelű elektromos működtetéssel

- gépészet: az épület irodai része fűthető gázkazánnal, a raktár fűtetlen

- elektromos: a világítás, a klíma és a kapu mozgatás 

- víz-csatorna: a vizesblokkokhoz kiépítve; fali tűzcsap van 

- szellőzés: a belső terű helyiségeknél kapcsolóról indított szellőzés

 - gyengeáram: informatika, riasztó, kamera, tűzjelző

 - a földszinten két gépészeti/közmű akna található; a 4. jelű épületből két védőcső került lefektetésre a közmű aknáig

- a rakodási terület térkővel burkolt, ipari minőségben

- a bérleti idő minimum 12 hó, amennyiben hamarabb kerül felmondásra a kaució összege nem jár vissza, két havi kaució szükséges a bérléshez


 Amennyiben a fenti 155806709  -es azonosító számú kiadó ipari ingatlan, vagy bármely kínálatunkban található ingatlan felkeltette érdeklődését, kérem hívjon bizalommal!

/A hirdetésben szereplő információk a megbízótól kapott adatok alapján készültek./

Irodánk teljes körű szolgáltatással áll ügyfelei rendelkezésére: hitelügyintézés, ügyvédi szolgáltatás, ingatlan értékbecslés, energetikai tanúsítvány készítése.

CasaNetWork - Ingatlanban otthon vagyunk!


Bővebben...


Ingatlan jellemzők

Közművek

gázvezetékes gáz
villanybevezetve (230 - 400 Volt)
vízvan, saját vízórával
csatornacsatorna közműhálózatba bekötve

Felszereltség

telefontelefon a közelben
TVkábeltévé
internetinternet optikai kábel
fűtéscirkó kazán
komfortfokozatösszkomfort
akadálymentesítésnem akadálymentesített
bútorozottságrészben bútorozott
klímasaját split klíma

Ingatlan tulajdonságai

építési módkönnyűszerkezetes
belső állapot
külső állapotjó külső
kilátásudvari kilátás
parkolásparkolás udvarban
tájolásdéli tájolás

Helyiségek

Raktár
817 m2
Raktár
48 m2
Eladótér
62 m2
Előtér
28 m2
Előkészítő helyiség
38 m2
Iroda
17 m2
Étkező
13 m2
WC
3 m2
Iroda
48 m2
Pénztár
5 m2
Iroda
28 m2
Iroda
16 m2
Közlekedő
12 m2
Közlekedő
5 m2
Közlekedő
17 m2
Iroda
23 m2
Iroda
15 m2
Iroda
17 m2
Konyha
12 m2
WC
6 m2
Zuhanyzófülke
19 m2
Galéria
252 m2


Tetszett az ingatlan?

Kérdése van? Forduljon hozzánk bizalommal!

Garamvölgyi Gábor

Garamvölgyi Gábor

e-mail cím..
+36202890849
Üzenetküldés folyamatban
Sikeres üzenetküldés
Garamvölgyi Gábor
Garamvölgyi Gábor
Ingatlanszakértő
Üzenet küldése