Kiadó téglalakás - Gödöllő (Belváros) ingatlan ID: 166401568

 Megosztás  nyomtatás  Kedvencekhez
100 m2
alapterület
3
szoba
400 000 Ft


Ingatlan leírása

Újszerű, nívós családi házban a központban

CasaNetWork Gödöllő Ingatlaniroda kínálatában kiadó újszerű, modern kivitelezésű belső kétszintes lakás Gödöllő Belvárosában!

Hosszú távra (minimum 2 év!), önmagára és környezetére egyaránt adó bérlő részére kiadó. Közjegyzői nyilatkozat szükséges . Megegyezés esetén, nyilatkozattételt követően azonnal költözhető! Kaució mértéke: 2 havi bérleti díj

Ingyenes hitel tanácsadással, ügyvédi kapcsolattal és rugalmas időbeosztással állunk kedves ügyfeleink rendelkezésére! CASANETWORK - Ingatlanban otthon vagyunk

Bővebben...


Ingatlan jellemzők

Közművek

villanybevezetve (230 - 400 Volt)
vízvan, saját vízórával
csatornacsatorna közműhálózatba bekötve

Felszereltség

TVkábeltévé
komfortfokozatdupla komfort
akadálymentesítésnem akadálymentesített
bútorozottságbútorozatlan
klímasaját split klíma
fűtésnapelem

Ingatlan tulajdonságai

építési módtégla
belső állapotúj építésű
külső állapothőszigetelt
kilátásvegyes kilátás
parkolásingyenes parkoló utcán
tájolásdélkeleti tájolás
rezsiköltség20 000 Ft

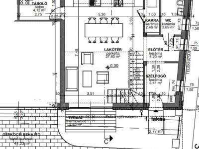
Helyiségek

Előszoba
6.41 m2
Közlekedő
4.2 m2
Fürdőszoba + WC
3.69 m2
Kamra, Éléskamra, Spájz
2.48 m2
Amerikai konyhás nappali
37.6 m2
Tároló
4.12 m2
Terasz
5.4 m2
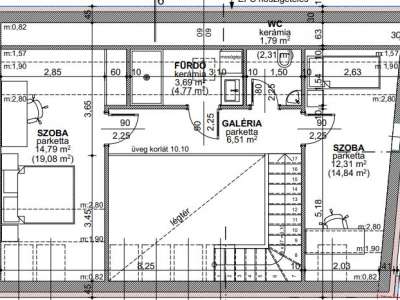
Szoba
14.79 m2
Szoba
12.31 m2
Fürdőszoba + WC
3.69 m2
WC
1.79 m2
Galéria
6.51 m2


Tetszett az ingatlan?

Kérdése van? Forduljon hozzánk bizalommal!

Debreczeniné Anett

Debreczeniné Anett

e-mail cím..
+36202676103
Üzenetküldés folyamatban
Sikeres üzenetküldés
Debreczeniné Anett
Debreczeniné Anett
Ingatlan-képviselő
Üzenet küldése