Eladó családi ház - Cegléd (Budai út) ingatlan ID: 174602148

 Megosztás  nyomtatás  Kedvencekhez
95 m2
alapterület
697 m2
telek
5
szoba
84 500 000 Ft


Ingatlan leírása

Cegléden új építésű családi ház eladó!

Cegléden új építésű családi ház eladó!

A CasaNetWork Ingatlanhálózat CNW eladásra kínálja a 174602148 ID számú, új építésű családi házat Cegléden!

A modern családi ház 697 m²-es telken épül, 95 m²-es tervezett lakótérrel, minden szempontból megfelel a korszerű életvitel elvárásainak. Az épület VIABLOKK falazatú, kiváló minőségű modern szigeteléssel, amely hatékony hőszigetelést biztosít télen és nyáron egyaránt. A műanyag nyílászárók nemcsak a jobb hőszigetelést, hanem a hatékony hangszigetelést is garantálják, míg a nyári hónapokban klímaberendezés gondoskodik a kellemes belső hőmérsékletről.

A fűtésről korszerű hőszivattyú gondoskodik, amely környezetbarát és gazdaságos megoldást kínál, emellett gázkazán is rendelkezésre áll az energiatakarékos fűtés kiegészítésére. Az ingatlan minden olyan kényelmi és műszaki adottsággal rendelkezik, amely ideális otthont nyújt egy modern család számára.

A burkolatok tekintetében a leendő tulajdonos ízlésének megfelelően választhat melegburkolatot 3000 Ft/m², illetve hidegburkolatot 4000 Ft/m² árkategóriáig.

Közművek: gáz, vezetékes víz, 3 fázisú villany, emésztő.

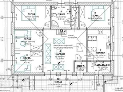
Helyiséglista: előtér 2,03 m2, nappali 26,57 m2, háztartási helyiség 3,89 m2, konyha 11,31 m2, szoba 10,53 m2, fürdő 6,48 m2, wc 1 m1, szoba 12,15 m2, szoba 10 m2, szoba 9,27 m2, terasz 12,5 m2.

Átadás: 2026 év eleje.

A jelenleg meghirdetett ingatlan mérnöki rajz alapján lett közzétéve. Figyelembe kell venni, hogy a használatbavételi engedély kiadása után az ingatlan m²-ben kisebb vagy nagyobb eltérést mutathat (+/- irányba).

Az ingatlan HITELRE és CSOK-ra is alkalmas!

Amennyiben a 174602148 ID számú, a CasaNetwork Cegléd által kínált családi ház, vagy bármely a kínálatunkban található ingatlan felkeltette érdeklődését, hívjon a megadott telefonszámon. A hirdetésben szereplő információk a megbízótól kapott adatok alapján készültek, pontosságukért felelősséget nem vállalunk.

Kollégánk díjmentes, banksemleges hitel ügyintézéssel áll rendelkezésre.

CASANETWORK – Ingatlanban otthon vagyunk!

Bővebben...


Ingatlan jellemzők

Közművek

gázvezetékes gáz
villanybevezetve (230 - 400 Volt)
vízvan, saját vízórával
csatornaszennyvíz derítő

Felszereltség

komfortfokozatösszkomfort
bútorozottságbútorozatlan
klímasaját split klíma
fűtéshőszivattyú

Ingatlan tulajdonságai

építési módgázbeton, YTONG11
belső állapotúj építésű
külső állapothőszigetelt
kilátásudvari kilátás
parkolásparkolás udvarban
energetikai tanúsítványAA+
tájolásdéli tájolás

Helyiségek

Szoba
12.5 m2
Fürdőszoba
6.48 m2
Szoba
10.5 m2
Szoba
10 m2
Szoba
9.2 m2
Nappali
26.57 m2
Előtér
2.03 m2
Konyha
11.31 m2
Háztartási helyiség
3.89 m2
WC
1 m2
Terasz
12.5 m2


Tetszett az ingatlan?

Kérdése van? Forduljon hozzánk bizalommal!

Horváthné Monori Rita

Horváthné Monori Rita

e-mail cím..
+36203194018
Üzenetküldés folyamatban
Sikeres üzenetküldés

Hitel kalkulátor

Keresse hiteltanácsadónkat!

Füléné Mihai Ágnes
Füléné Mihai Ágnes
Találatok betöltése folyamatban..
Nem kalkulálható hitel az adott paraméterekkel, kérjük csökkentse a hitelösszeget, vagy növelje a futamidőt.
Legjobb ajánlatunk
{{ offer.installmentStart|price }} induló havi törlesztő
{{ offer.fullPayableAmount|price }} teljes visszafizetés
{{ offer.interestPeriodNotAided.name }}ig fix törlesztő
{{ offer.interestPeriodAided.name }}ig fix törlesztő
Horváthné Monori Rita
Horváthné Monori Rita
Ingatlan-képviselő
Üzenet küldése
Füléné Mihai Ágnes
Füléné Mihai Ágnes
hitelközvetítő
Hitel kalkulátor