Eladó családi ház - Gödöllő (Királytelep) ingatlan ID: 166401386

 Megosztás  nyomtatás  Kedvencekhez
219 m2
alapterület
980 m2
telek
5
szoba
155 000 000 Ft


Ingatlan leírása

A rezsi miatt nem kell aggódnia!

CasaNetWork Gödöllő Ingatlaniroda kínálatában eladó családi ház Gödöllő Királytelep városrészén, az egyik legszebb utcában. A lakóház egy meseszép, majd "ezres" telken található,  buja dísznövényekkel ékesítve. Az erkélyéről csodás kilátás nyílik a környék dimbes-dombos lankáira. 

A kétszintes épület letisztult,  fehér szürke színek játékával divatos külsőt kapott.  A minőségi ablakok és a teraszokra nyíló nagyméretű emelő-toló ajtók a homlokzatba illő hófehér színűek. A hatalmas fedett terasz nagyobb része üveggel fedett, hogy ne vegyen el fényt a lakótérből. 

Lakói gondosan tervezték az épületet, azzal a céllal hogy a legkevesebb karbantartás igényelje az évek során, valamint minimális rezsivel fenntartható legyen. Tájolása is erről tanúskodik, szinte körbenapozott az épület, a napelemeknek is tökéletes felületet biztosítva.  Jelenlegi formáját 2016-ban nyerte el, amikor bővítették a lakóépületet és a tetőtér beépítésre került. 

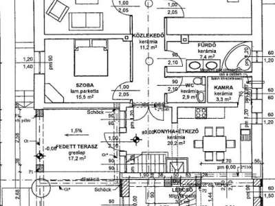
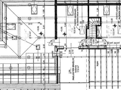
A földszinten a vidám családi napokhoz egy tágas ,, modern konyha, 2 hálószoba és  2 mosdó áll rendelkezésre.  A tetőtér önálló lakrészként is funkcionálhat, de kamasz gyermekeknek lehetőséget ad elvonulásra, esetleg vendégszobának használhatóak. (Lakótér 191 m2 + teraszok 39 és 18 m2)

Gépkocsik tárolására 2 fedett beálló, 3 autó számára áll rendelkezésre, ugyanitt épített fatároló. Egyéb tárolásra, raktározásra 2db  20 négyzetméteres pincehelyiség is adott, egyikben a gépészet található, másik segíti a háziasszonyok munkáját. 

Az ingatlan riasztó- és kamerarendszerrel felszerelt; mozgás-, nyitás-, fúrás-, törés-, füstérzékelőkkel és szénmonoxid riasztóval.

Lássuk, mitől lesz 30,000 Ft /hó a teljes rezsiszámla egy  200 m2-es házban!? Az ingatlanban alternatív fűtési megoldásokat alakítottak ki, minden eshetőségre felkészülve. 

Ajánlom ezt a tágas családi házat népes családnak, felnőtt gyermekekkel, két generációnak, vagy home office-ban dolgozóknak, akik csendes kertvárosias övezetben szeretnének élni, ugyanakkor központhoz, tömegközlekedéshez elérhető távolságban. Az ingatlan rendezett tulajdoni viszonyokkal bír, és tehermentes.

Ingyenes hitel tanácsadással, ügyvédi kapcsolattal és rugalmas időbeosztással állunk kedves ügyfeleink rendelkezésére! CASANETWORK - Ingatlanban otthon vagyunk!

Bővebben...


Ingatlan jellemzők

Közművek

villanybevezetve (230 - 400 Volt)
vízvan, saját vízórával
csatornacsatorna közműhálózatba bekötve
gázgáz az épületben

Felszereltség

komfortfokozatösszkomfort
akadálymentesítésnem akadálymentesített
bútorozottságrészben bútorozott
klímasaját split klíma
fűtésnapelem

Ingatlan tulajdonságai

építési módtégla
belső állapotkiváló
külső állapothőszigetelt
kilátásudvari kilátás
parkolásparkolás beállón
energetikai tanúsítványAA++
tájolásdélkeleti tájolás

Helyiségek


Tetszett az ingatlan?

Kérdése van? Forduljon hozzánk bizalommal!

Szilágyi Krisztina

Szilágyi Krisztina

e-mail cím..
+36205092022
Üzenetküldés folyamatban
Sikeres üzenetküldés

Hitel kalkulátor

Keresse hiteltanácsadónkat!

Erdei Bernadett Erika
Erdei Bernadett Erika
Találatok betöltése folyamatban..
Nem kalkulálható hitel az adott paraméterekkel, kérjük csökkentse a hitelösszeget, vagy növelje a futamidőt.
Legjobb ajánlatunk
{{ offer.installmentStart|price }} induló havi törlesztő
{{ offer.fullPayableAmount|price }} teljes visszafizetés
{{ offer.interestPeriodNotAided.name }}ig fix törlesztő
{{ offer.interestPeriodAided.name }}ig fix törlesztő
Szilágyi Krisztina
Szilágyi Krisztina
Vezető ingatlan-képviselő
Üzenet küldése
Erdei Bernadett Erika
Erdei Bernadett Erika
hitelközvetítő
Hitel kalkulátor