Eladó családi ház - Gödöllő (Kertváros) ingatlan ID: 166401897

 Megosztás  nyomtatás  Kedvencekhez
131 m2
alapterület
517 m2
telek
5
szoba
129 900 000 Ft


Ingatlan leírása

Kiváló közlekedéssel esztétikus otthon

CasaNetWork Ingatlaniroda Gödöllő Ingatlaniroda kínálatában eladó családi ház Gödöllő Kertvárosi részén


Szeretném  figyelmébe ajánlani ezt a barátságos és hangulatos otthont, amely minden igényt kielégít a kényelmes családi élethez!

A házhoz tartozik egy szép, gondozott zöld kert, amely tökéletes helyszín pihenésre, közös családi programokra vagy akár kerti grillezésre is. A kertet perzsa selyemakcáfa, ízletes fügefa, cseresznyefa, almafa ékesíti, a fűnyíró és egyéb szerszámok tárolására egy kb 8nm-es kis házikó áll rendelkezésre. 

A  napelem-rendszer (2,6KW) alacsony rezsiköltséget biztosít, így az otthon fenntartása hosszú távon is rendkívül gazdaságos.

A családi ház praktikus elosztású és tágas, így minden családtag számára kényelmes életteret nyújt. 

Az ingatlan kiváló közlekedési adottságokkal rendelkezik: a belváros gyorsan elérhető, busszal könnyen megközelítheő iskola, óvoda, közelben kiváló kirándulási lehetőségek, zöld területek  találhatók.

További ízelítő:

-  redőnnyel, szúnyoghálóval szerelt fa nyílászárók

- hűtő-fűtő klíma mely a kellemes hőérzetet biztosítja  nyáron és akár télen is 

- az otthont gáz cirkókazán és kandalló melengeti

- az autó parkolására önálló garázs áll rendelkezésre, de igény szerint szobává is alkaítható

- a tetőtér könnyen egy légterűvé variálható a falak bontásával, így akár saját elképzelése alapján tervezheti, alakíthatja.

Ez az ingatlan ideális választás mindazoknak, akik egy kényelmes, modern és fenntartható otthont keresnek családjuk számára.

Ugye milyen klassz? :-) Bővebb információkért, megtekinthetőségért hívjon bátran telefonon a hét bármely napján!

Köszönöm,hogy elolvasta hirdetésemet! :-)

Ingyenes hitel tanácsadással, ügyvédi kapcsolattal és rugalmas időbeosztással állunk kedves ügyfeleink rendelkezésére! CASANETWORK - Ingatlanban otthon vagyunk

Bővebben...


Ingatlan jellemzők

Közművek

villanybevezetve (230 Volt)
vízvíz az épületben
csatornacsatorna közműhálózatba bekötve
gázgáz az épületben

Felszereltség

fűtéscirkó kazán
komfortfokozatösszkomfort
klímasaját split klíma

Ingatlan tulajdonságai

építési módtégla
belső állapotkiváló
külső állapotkiváló külső
kilátáskertre néző
tájolásdélnyugati tájolás
parkolásparkolás garázsban

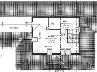
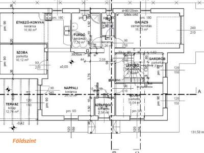
Helyiségek

Nappali
29.53 m2
Konyha + étkező
16.8 m2
Fürdőszoba + WC
7.33 m2
Szoba
10.12 m2
WC
2 m2
Szoba
11.04 m2
Lépcsőház
2.76 m2
Gardrób
7.7 m2
Szélfogó
2.58 m2
Közlekedő
5 m2
Terasz
12.74 m2
Garázs
16.73 m2
Közlekedő
8.26 m2
Szoba
27.2 m2


Tetszett az ingatlan?

Kérdése van? Forduljon hozzánk bizalommal!

Hermann Brigitta

Hermann Brigitta

e-mail cím..
+36204330733
Üzenetküldés folyamatban
Sikeres üzenetküldés

Hitel kalkulátor

Keresse hiteltanácsadónkat!

Erdei Bernadett Erika
Erdei Bernadett Erika
Találatok betöltése folyamatban..
Nem kalkulálható hitel az adott paraméterekkel, kérjük csökkentse a hitelösszeget, vagy növelje a futamidőt.
Legjobb ajánlatunk
{{ offer.installmentStart|price }} induló havi törlesztő
{{ offer.fullPayableAmount|price }} teljes visszafizetés
{{ offer.interestPeriodNotAided.name }}ig fix törlesztő
{{ offer.interestPeriodAided.name }}ig fix törlesztő
Hermann Brigitta
Hermann Brigitta
Ingatlan-képviselő
Üzenet küldése
Erdei Bernadett Erika
Erdei Bernadett Erika
hitelközvetítő
Hitel kalkulátor