Eladó házrész - Gödöllő (Belváros) ingatlan ID: 166400328

 Megosztás  nyomtatás  Kedvencekhez
86 m2
alapterület
319 m2
telek
3
szoba
44 900 000 Ft


Ingatlan leírása

Belváros szívében

CASANETWORK Gödöllő Ingatlaniroda eladásra kínál városközponti ingatlant

Ritka lehetőség Gödöllő szívében!

Ha Ön is azok közé tartozik, akik értékelik a belváros nyújtotta kényelmet, de mégis vágynak egy saját kis zöld oázisra, akkor ez az ingatlan Önre vár!

Gödöllő belvárosában, csendes, mégis mindenhez közeli helyen kínálunk eladásra egy 319 m²-es telket, rajta egy kb 90 m²-es bontandó vagy teljesen felújítandó családi házzal, garázzsal, fúrt kúttal, valamint buja, természetes növényzettel borított kerttel.

Ez az ingatlan ideális választás lehet azoknak, akik saját elképzeléseik szerint szeretnék kialakítani otthonukat – akár egy modern városi rezidenciát terveznének, akár egy letisztult, praktikus lakóházat kis kerttel és terasszal.

A telek mérete lehetővé teszi egy kényelmes, teraszos ház megépítését, ahol egy reggeli kávé vagy egy esti borozás is élménnyé válik – kertészkedés nélkül, de mégis zöld környezetben.

A helyi építési szabályzat szerint:

Előnyök:

Ne hagyja ki ezt a ritka belvárosi lehetőséget – építse meg álmai otthonát Gödöllő központjában! Megtekintési szándékával vagy további információért hívjon bizalommal! Ingyenes hitel tanácsadással, ügyvédi kapcsolattal és rugalmas időbeosztással állunk kedves ügyfeleink rendelkezésére! CASANETWORK - Ingatlanban otthon vagyunk

Bővebben...


Ingatlan jellemzők

Közművek

gázgázcsonk a telken
villanybevezetve (230 Volt)
vízvan, saját vízórával
csatornacsatorna közműhálózatba bekötve

Felszereltség

fűtésvegyes tüzelés, villanyfűtés
komfortfokozatkomfort
klímanincs klíma

Ingatlan tulajdonságai

építési módvegyes
belső állapotelbontandó
külső állapotrossz külső állapot
kilátásudvari kilátás
tájolásdélkeleti tájolás
parkolásparkolás garázsban

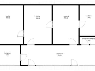
Helyiségek

Szoba
14 m2
Szoba
13 m2
Félszoba (kisszoba)
6 m2
Konyha
13 m2
Fürdőszoba + WC
10 m2
Közlekedő
28 m2
Tároló
2 m2


Tetszett az ingatlan?

Kérdése van? Forduljon hozzánk bizalommal!

Debreczeniné Anett

Debreczeniné Anett

e-mail cím..
+36202676103
Üzenetküldés folyamatban
Sikeres üzenetküldés

Hitel kalkulátor

Keresse hiteltanácsadónkat!

Erdei Bernadett Erika
Erdei Bernadett Erika
Találatok betöltése folyamatban..
Nem kalkulálható hitel az adott paraméterekkel, kérjük csökkentse a hitelösszeget, vagy növelje a futamidőt.
Legjobb ajánlatunk
{{ offer.installmentStart|price }} induló havi törlesztő
{{ offer.fullPayableAmount|price }} teljes visszafizetés
{{ offer.interestPeriodNotAided.name }}ig fix törlesztő
{{ offer.interestPeriodAided.name }}ig fix törlesztő
Debreczeniné Anett
Debreczeniné Anett
Ingatlan-képviselő
Üzenet küldése
Erdei Bernadett Erika
Erdei Bernadett Erika
hitelközvetítő
Hitel kalkulátor